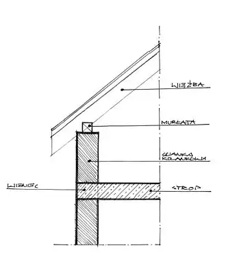
Ścianka kolankowa

Ścianka kolankowa – ścianka dobudowana na wieńcu ostatniej kondygnacji budynku w celu podniesienia dachu i tym samym zwiększenie powierzchni użytkowej poddasza.
Jej wysokość zależy od koncepcji organizacji poddasza. Dla poddaszy użytkowanych przeznaczonych na pomieszczenia mieszkalne najczęściej stosuje się wysokość 80-110 cm, wówczas okna umieszcza się w połaci dachowej lub lukarnie. Stosuje się też ścianki o wysokości około 2 m, wówczas okna można umieścić w ściance kolankowej. Wykorzystując poddasze jako przestrzeń nieużytkową, wysokość ścianki zazwyczaj nie przekracza 70 cm i stosuje się ją głównie w celu podniesienia połaci dachu nad okna ostatniej kondygnacji.