Kościół św. Stanisława w Jaśle
| kościół parafialny | |||||||||||||||||||
![]() Widok od frontu | |||||||||||||||||||
| Państwo | |||||||||||||||||||
|---|---|---|---|---|---|---|---|---|---|---|---|---|---|---|---|---|---|---|---|
| Województwo | |||||||||||||||||||
| Miejscowość | |||||||||||||||||||
| Adres |
ul. Adama Mickiewicza | ||||||||||||||||||
| Wyznanie | |||||||||||||||||||
| Kościół | |||||||||||||||||||
| Parafia | |||||||||||||||||||
| Wezwanie | |||||||||||||||||||
| Wspomnienie liturgiczne | |||||||||||||||||||
| |||||||||||||||||||
| |||||||||||||||||||
Położenie na mapie Jasła ![]() | |||||||||||||||||||
Położenie na mapie Polski ![]() | |||||||||||||||||||
Położenie na mapie województwa podkarpackiego ![]() | |||||||||||||||||||
Położenie na mapie powiatu jasielskiego ![]() | |||||||||||||||||||
Kościół św. Stanisława (pot. kaplica gimnazjalna[3] lub kościółek[4]) – rzymskokatolicki kościół parafialny znajdujący się w Jaśle. Został wzniesiony pod koniec XIX w., jako kaplica przy jasielskim gimnazjum. Zdewastowany przez Niemców w 1944 r., został odrestaurowany i od 1971 r. pełni funkcję głównej świątyni parafii św. Stanisława.
Lokalizacja
Kościół usytuowany jest w centrum Jasła, przy skrzyżowaniu ulic Czackiego i Mickiewicza. Jest to budowla wolnostojąca, z prezbiterium skierowanym na północny zachód. Tuż obok znajdują się budynki I LO im. Króla Stanisława Leszczyńskiego, od strony południowej znajduje się skwer, a na zachód od kościoła znajdują się bloki mieszkalne[2].
Historia
Pod koniec XIX w. w Jaśle istniała tylko jedna parafia (Wniebowzięcia NMP) obejmująca miasto i dwadzieścia okolicznych wsi, z sumarycznie ok. 9 tysiącami mieszkańców. Stałe przepełnienie kościoła parafialnego wiernymi doprowadziło do powstania koncepcji budowy dodatkowego budynku – kaplicy. Inicjatywę zapoczątkowali ówczesny dyrektor gimnazjum Klemens Sienkiewicz wraz z żoną Herminą oraz nauczyciele. Fundusze zebrano dzięki składkom mieszkańców miasta i okolicznych wsi. Zbiórką zajmowała się przede wszystkim Hermina Sienkiewicz, która w celu pozyskania pieniędzy zorganizowała m.in. przedstawienia teatralne oraz zabawę fantową[5]. Materiały na budowę zostały pozyskane z pomocą ziemian: właściciel Gorajowic ofiarował kamieniołom na cel pozyskania kamienia, a Włodkowa, właścicielka dóbr trzcinickich podarowała drewno w znacznych ilościach[6]. Powołano komitet budowy, w składzie: Stanisław Kotarski (właściciel dóbr Brzyska, marszałek powiatu), Adam Skrzyński, Stanisław Klobassa Zręcki (właściciel kopalni ropy naftowej w Bóbrce), Romuald Palch, starosta Roman Gabryszewski, burmistrz miasta Alojzy Metzeger, proboszcz ks. Leon Sroczyński, katecheta ks. Szymon Cetnarski i dyrektor szkoły Klemens Sienkiewicz[2]. Koszt budowy obiektu oszacowano na 15 000 ówczesnych złotych. Działkę obok gimnazjum oddały pod budowę władze miasta[5].
Kamień węgielny pod kaplicę poświęcił uroczyście 28 maja 1892 r. miejscowy proboszcz, ks. Leon Sroczyński. Do końca tego roku mury kaplicy wzniesiono do wysokości 4 m. W celu zebrania dalszych funduszy odbyły się kolejne zbiórki publiczne i impreza fantowa (z której udało się uzyskać 1415 złr), a także zorganizowano koncert w auli gimnazjalnej[6]. Inwestycję ukończono w 1893 r., a konsekracja miała miejsce 7 grudnia. Budowla otrzymała wówczas wezwanie św. Stanisława biskupa krakowskiego. Według ustaleń komitetu budowy, w kaplicy msze miały być odprawiane po dwa razy („dla uczniów i dla ogółu wiernych”) w niedziele i święta[6].
19 maja 1909 r. (wg innego źródła w 1919 r.[7]) miała miejsce uroczystość wmurowania w prezbiterium pamiątkowych tablic poświęconych dyrektorowi gimnazjum Klemensowi Sienkiewiczowi oraz katechecie, ks. Stanisławowi Falęckiemu. Z tej okazji odbyło się specjalne nabożeństwo[6].
.jpg)
W czasie I wojny światowej kaplica nie doznała poważnych zniszczeń[8]. We wrześniu 1939 r. rozpoczęła się II wojna światowa, a miasto zajęły wojska niemieckie. Zgodnie z rozporządzeniem władz okupacyjnych kaplica pełniła funkcję schronienia dla przesiedlonych. Wykorzystywano ją również jako magazyn zboża. Rektorem kaplicy przez cały okres trwania konfliktu był ks. Aleksander Gotfryd[9].
W listopadzie 1944 r. kaplicę spalono w ramach niemieckiej akcji unicestwienia Jasła. Całkowitemu zniszczeniu uległo wnętrze i dach z sześcioboczną sygnaturką o strzelistym hełmie[2] (ocalały mury i sklepienie nad prezbiterium). Szaty liturgiczne, które nie zostały wcześniej skradzione (m.in. ornaty, kapę i stuły), zdążył uprzednio przenieść do Nowego Sącza Niemiec Heinrich Müsch. Przekazał je do plebanii kościoła św. Małgorzaty, z prośbą o zwrócenie ich kościołowi gimnazjalnemu po zakończeniu wojny[10].
Po wojnie podjęto decyzję o odbudowie kaplicy gimnazjalnej jako pierwszego obiektu sakralnego w mieście, gdyż według oceny jaślan najbardziej nadawała się ona do szybkiego uruchomienia. Dokonano odgruzowania, następnie wykonano drewniane sklepienie i konstrukcję dachu, po czym przykryto świątynię blaszanym dachem, wykonanym przy użyciu pociętych elementów dawnego pokrycia. Pracami kierowała parafia jasielska, która finansowała przedsięwzięcie. Część środków uzyskano z subwencji na odbudowę miasta[11]. Już po kilku miesiącach, we wrześniu 1945 r., kaplicę z trzema prowizorycznymi ołtarzami otwarto dla wiernych[12]. Do czasu odbudowy fary (pierwszą mszę po wojnie odprawiono tam 8 grudnia 1949 r.[13]) przejęła ona funkcję kościoła parafialnego[11].
Ks. Aleksander Gotfryd pełnił funkcję rektora do 1961 r.; sprowadził do kościoła stacje Drogi Krzyżowej oraz zlecił prof. Wiktorowi Zinowi wykonanie projektu ołtarza głównego, który formą miał być zbliżony do tego sprzed wojny – projekt ten nie został jednak zatwierdzony przez Komisję Artystyczną i Liturgiczną Kurii Przemyskiej[12].
Po ustąpieniu ks. Gotfryda ze stanowiska rektora, budowla stała się kościołem filialnym – zaczęła podlegać bezpośrednio proboszczowi parafii jasielskiej[12]. Wykonanie ołtarza głównego ks. Stanisław Dudziński, ówczesny pleban, powierzył rzeźbiarzowi-amatorowi Józefowi Koczapskiemu. Został on poświęcony 12 maja 1963 r. przez ks. bpa Franciszka Bardę. Równocześnie pokryto ściany prezbiterium polichromią i wykonano witraże[12]. Prace kontynuowano w 1964 r.; projektantem polichromii wnętrza został prof. Stanisław Jakubczyk. Wykonał on także osiem mozaik przedstawiających polskich świętych i błogosławionych, które znalazły się na ścianach kościoła – część z nich została przysłonięta przez organy[14].
1 czerwca 1971 r., decyzją ks. bpa Ignacego Tokarczuka, utworzono parafię św. Stanisława, która objęła tereny wydzielone z północno-zachodniej części parafii Wniebowzięcia NMP i w początkowym okresie swojego istnienia liczyła ok. 4000 wiernych. Pierwszym proboszczem został ks. Stanisław Kołtak. W lutym 1976 r. parafia została oficjalnie uznana prawnie przez Urząd do Spraw Wyznań[15].
W listopadzie 1971 r. zakupiono do kościoła nagłośnienie, w latach 1973–1978 wstawiono nowe witraże (wykonane przez Jana Paczkę), a w latach 1975–1976 zamontowano nowe organy, które poświęcił ks. bp Ignacy Tokarczuk[16]. W 1983 r. przeprowadzono prace przy zakrystii – m.in. powiększono ją oraz wybudowano pod nią składzik[2].
W latach 90. XX w. nowy proboszcz, ks. Tadeusz Paszek, zainicjował wymianę instalacji nagłaśniającej oraz zakup nowych ławek i mebli do zakrystii. W 1996 r. wykonano nowe ogrodzenie wg projektu Krzysztofa Habrata. Wokół świątyni ułożono płytkami obejście. W 1999 r. m.in. zastąpiono drewniany strop żelbetowym wg projektu Romana Libuszowskiego (wykonawcą było Przedsiębiorstwo „Naftobudowa”)[17] oraz zakonserwowano pokrycie dachu. W 2000 r. w dawnym składziku-przedsionku wybito otwór i wstawiono schody (wykonane przez kowala Leśniaka), a także wyłożono plac przykościelny kostką brukową oraz wykonano ogrodzenie od strony południowej i wschodniej[2]. W 2001 r. do świątyni wstawiono cztery nowe konfesjonały[17].
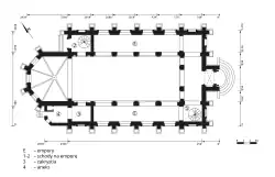
Architektura
Budowla została wzniesiona w stylu eklektycznym: z zewnątrz przeważają elementy neogotyckie, a wnętrze było pierwotnie neoromańskie. Jest jednonawowa, z korpusem na rzucie wydłużonego prostokąta. Niższe od niego prezbiterium, które z nawą łączy pełny łuk tęczowy, jest zamknięte trójbocznie. Od południa przylega do niego prostokątna dobudówka[2].
Kościół został zbudowany z cegły ceramicznej, ułożonej naprzemiennie w wątku główkowym i wozówkowym. Spoinowanie pomiędzy cegłami jest koloru czarnego. Mury wsparto od zewnątrz skarpami, wewnątrz otynkowano i wzmocniono pilastrami. Nad prezbiterium znajduje się sklepienie wielopolowe, zbliżone do konchowego, a kruchta została sklepiona krzyżowo. Nad nawą znajduje się płaski, żelbetowy strop[2].
Empora obiega świątynię z trzech stron, umownie dzieląc korpus na „nawy boczne” i „nawę środkową”. Jej arkady wyznaczają przęsła „naw bocznych”. Jest ich sześć, przy czym pierwsze przęsła zajmują analogiczne pomieszczenia o rzucie kwadratu: od strony północnej przedsionek ze schodami prowadzącymi na chór, a od strony południowej – zakrystia[2].
Elewacje urozmaicają ozdobne obramienia, w które ujęte są otwory okienne, blendy, gzymsy (kordonowy, oddzielający od siebie kondygnacje oraz wieńczący, z rzędem ząbków, przy prezbiterium bez) oraz skarpy. Fasada jest trzyosiowa, osie wyznaczają blendy, pasowe boniowanie oraz potrójne okna. Pośrodku szczytu znajduje się oculus, a nad nim umieszczono ozdobną płycinę z łacińskim napisem SOLI DEO[2] (pol. JEDYNEMU BOGU)[7].
Kształt otworów okiennych i drzwiowych oraz blend jest zróżnicowany – są zamknięte półkoliście, odcinkowo lub mają kształt prostokąta[2].
Posadzki w nawie i na emporze wyłożone są ozdobnym lastriko, a w zakrystii i składziku – płytkami ceramicznymi[2].
Dachy świątyni są kryte blachą, a skarpy i gzymsy osłonięte dachówką ceramiczną. Nawa przykryta jest dachem dwuspadowym, prezbiterium – dwuspadowym, który nad apsydą przechodzi w trójpołaciowy. Kruchta i najniższa dobudówka są przykryte osobnymi dachami. Więźba dachowa jest drewniana, konstrukcji płatowo-krokwiowej[2].
Powierzchnia użytkowa budowli wynosi 372 m², kubatura liczy 3085 m³[2].
Elewacja południowa
Elewacja wschodnia
Elewacja północna
Przypisy
- ↑ Rejestr zabytków nieruchomych – województwo podkarpackie [online], Narodowy Instytut Dziedzictwa, 31 stycznia 2025 [dostęp 2023-08-10].
- 1 2 3 4 5 6 7 8 9 10 11 12 13 14 Barbara Bosak, Karta ewidencyjna zabytków architektury i budownictwa, tzw. biała – kaplica gimnazjalna pw. św. Stanisława bpa, ob. kościół par. rzym.-kat. pw. św. Stanisława BM [online], zabytek.pl, sierpień 2001 [dostęp 2023-03-11] (pol.).
- ↑ Świstak 1992 ↓, s. 5.
- ↑ Historia parafii św. Stanisława BM w Jaśle [online], kosciolek.info, 27 stycznia 2019 [dostęp 2023-08-09] (pol.).
- 1 2 Świstak 1992 ↓, s. 11.
- 1 2 3 4 Świstak 1992 ↓, s. 12.
- 1 2 Świstak 2003 ↓, s. 18.
- ↑ Świstak 1992 ↓, s. 15–17.
- ↑ Świstak 1992 ↓, s. 33–34.
- ↑ Świstak 1992 ↓, s. 35–36.
- 1 2 Świstak 1992 ↓, s. 39.
- 1 2 3 4 Świstak 2003 ↓, s. 20.
- ↑ Świstak 1992 ↓, s. 41.
- ↑ Świstak 2003 ↓, s. 21.
- ↑ Świstak 1992 ↓, s. 49.
- ↑ Świstak 2003 ↓, s. 22.
- 1 2 Świstak 2003 ↓, s. 23.
Bibliografia
- Zdzisław Świstak, Kaplica Gimnazjalna w Jaśle: Z dziejów kościoła i parafii pod wezwaniem św. Stanisława BM, Jasło: I Liceum Ogólnokształcące im. Króla Stanisława Leszczyńskiego w Jaśle, 1992, OCLC 834076649 (pol.).
- Kaplica gimnazjalna, [w:] Zdzisław Świstak, W kręgu zabytków Jasła, Jasło: Zdzisław Świstak, 2003, s. 17–23, ISBN 978-83-86744-17-6.
.jpg)




