Kościół Podwyższenia Krzyża Świętego w Wojcieszycach
![]() Kościół pw. Podwyższenia Krzyża Świętego w Wojcieszycach | |||||||||||||||||||
| Państwo | |||||||||||||||||||
|---|---|---|---|---|---|---|---|---|---|---|---|---|---|---|---|---|---|---|---|
| Miejscowość | |||||||||||||||||||
| Wyznanie | |||||||||||||||||||
| Kościół | |||||||||||||||||||
| Wezwanie | |||||||||||||||||||
| Wspomnienie liturgiczne | |||||||||||||||||||
| |||||||||||||||||||
| |||||||||||||||||||
Położenie na mapie gminy Kłodawa ![]() | |||||||||||||||||||
Położenie na mapie Polski ![]() | |||||||||||||||||||
Położenie na mapie województwa lubuskiego ![]() | |||||||||||||||||||
Położenie na mapie powiatu gorzowskiego ![]() | |||||||||||||||||||

























Kościół pod wezwaniem Podwyższenia Krzyża Świętego w Wojcieszycach – kościół o cechach romańsko-gotyckich oraz barokowych. Orientowany, jednoprzestrzenny. Usytuowany w centralnej części wsi Wojcieszyce, w województwie lubuskim, powiecie gorzowskim, gminie Kłodawa, na prostokątnej działce otoczonej murem. Kamienny korpus powstał na przełomie XIII i XIV wieku, w początkach XVIII wieku została dobudowana apsyda oraz wieża o konstrukcji ryglowej.
Historia
Okres katolicki w średniowieczu
Pierwsza wzmianka, świadcząca o istnieniu kościoła w Wojcieszycach (niem. Wormesfelde), jest zawarta w spisie dóbr władającego Nowa Marchią margrafa Ludwika Starszegoz w roku 1337. Jest w nim mowa, że spośród 64 włók ziemi na terenie wsi, 4 należały do kościoła. Jednak został on wybudowany kilkadziesiąt lat wcześniej, prawdopodobnie na przełomie XIII i XIV wieku, na co wskazuje technika budowy kamiennych murów, ułożonych z regularnie obrobionych kostek granitowych oraz ślad po zamurowanym portalu w elewacji północnej[1]. Na ten okres powstanie świątyni datował Kurt Reismann[2], natomiast Stanisław Kowalski optuje za początkiem XIII wieku, zaś Zygmunt Świechowski za końcem XIII wieku[3].
W okresie średniowiecza wojcieszycki kościół był prostokątną budowlą halową, bezwieżową, przykrytą stromym, dwuspadowym dachem. Taki kształt posiadała większość ówczesnych wiejskich obiektów sakralnych, wznoszonych w ciągu drugiej połowy XIII wieku w Nowej Marchii, a zwłaszcza na jej północnych krańcach, na terenie Ziemi Myśliborskiej i Chojeńskiej. Podobne świątynie można spotkać w Barnkowie[4], Brwicach[5]) czy Goszkowie. Prawdopodobnie wybudował je ten sam, miejscowy zakład kamieniarski, który wcześniej pracował przy wyżej wymienionych obiektach[1].
Wojcieszycka parafia wchodziła w skład diecezji kamieńskiej. W okresie późnego średniowiecza, wraz z utrwalaniem panowania Marchii Brandenburskiej, postępowała germanizacja terenów nad dolną Wartą. Jednak co najmniej do połowy XV wieku Wojcieszyce (Wormsfelde) były zamieszkiwane przez ludność słowiańską, o czym świadczy wytoczenie w roku 1441 miejscowemu proboszczowie Mikołajowi procesu za głoszenie kazań po polsku[6].
Okres ewangelicki
W roku 1535 kościół, podobnie jak wiele innych na terenie Nowej Marchii, został przekazany gminie ewangelickiej[7]. Zmiana liturgii pociągnęła za sobą wymianę wyposażenia, głównie w ciągu XVII i XVIII wieku[8]. Od XVII wieku wojcieszycki kościół był siedzibą parafii luterańskiej, do której należał również kościół w Różankach. Księgi kościelne prowadzono od 1686r roku. Pastorami byli: Bartłomiej Stromer (1630-1644), Samuel Pittius (1644-1684), Chrystian Giller (1685-1723), Gotfryd Schmidt (1724-1739) i Jan Gabriel Fischer, a po zakończeniu wojny siedmioletniej Erdman Gebauer (1759-1761), Jan Gerhardt (1762-1763), Gotfryd Ludecke (1766-1796), Wilhelm Kolbe (1796-18130, Daniel Goldbeck (1813-1865), Aleksander Kalluski (1866-1887) i Ernest Geger ((1888-1895)[9]. Ostatni pastor, sprawujący funkcję do momentu wysiedlenia niemieckich mieszkańców w 1946 roku, nosił nazwisko Dowidat[10].
W roku 1703 rozpoczęła się gruntowna przebudowa kościoła. Wyburzono ścianę wschodnią i postawiono w tym miejscu nową ścianę w formie łuku odcinkowego – apsydę, co jest rozwiązaniem unikalnym w skali regionu. Wzniesiono ją z odzyskanych z rozbiórki kostek granitowych i z cegły ceramicznej. Cegły użyto też do wykonania ościeży nowych okien, które znacznie powiększono we wszystkich elewacjach, nadając im półkoliste zakończenia, a także do wymurowania nowego gzymsu wieńczącego oraz ościeży wejść do krypty, wybudowanej wówczas pod wschodnią częścią świątyni. Elewacje korpusu otynkowano cienkimi warstwami wapiennego tynku, żłobiąc w nim linie i podziały naśladujące układ kamiennych kwadr. W trakcie tych prac wymieniono więźbę dachową oraz strop nad nawą. Na poddaszu zachodniej części korpusu wybudowano nadwieszoną wieżę o konstrukcji ryglowej, zwieńczoną ośmioboczną latarnią przykrytą baniastym hełmem z chorągiewką, na której widniała data zakończenie robót – 1705. Prace te najprawdopodobniej sfinansowała rodzina von Schoning, ówcześni właściciele części Wojcieszyc[1].
W 1849 na wieży umieszczono dzwon o średnicy 75 cm odlany w warsztacie Bogumiła Grossheima we Frankfurcie n.O.. W kolejnych latach zakupiono tzw. dzwon Maryjny, który w 1917 został przetopiony na cele wojenne[8]. W końcu XIX wieku zlikwidowano cmentarz przykościelny, tworząc nowy w południowo-wschodniej części wsi[7]. Działkę ogrodzono ceglanym murem z ozdobną, kutą bramą i dwiema furtami.
W kształcie, jaki otrzymał na początku XVIII wieku, kościół przetrwał aż do lat trzydziestych XX wieku. Wtedy to przeprowadzono gruntowny remont budynku uszkodzonego podczas wielkiego pożaru wsi w roku 1929[11], wymieniając pokrycie dachu i hełmu, posadzki, stolarkę okienną i drzwiową. Zamurowano okno w osi apsydy i dwa wejścia do krypty, oszalowano deskami ściany latarni wieży[1].
Okres katolicki
W czasie II wojny światowej kościół nie uległ zniszczeniu. W 1946 został przejęty przez kościół rzymskokatolicki i poświęcony 21 września 1947 pod wezwaniem Podwyższenia Krzyża Świętego. Organizatorką poświęcenia kościoła była Jadwiga Beutler, pierwsza polska kierowniczka wojcieszyckiej szkoły. W tym okresie usunięto z wnętrza empory boczne[7].
Po utworzeniu w 1951 parafii Matki Bożej Różańcowej w Kłodawie kościół wszedł w jej skład jako kościół filialny, a w 1974 przeszedł do świeżo erygowanej parafii św. Stanisława Kostki w Różankach. Jej pierwszym proboszczem został ks. Dionizy Nowak, który pełnił tę funkcję aż do roku 2004. Obecnie proboszczem jest ks. Dariusz Chmist[12].
W latach siedemdziesiątych XX w. przemurowano ogrodzenie działki kościelnej od strony wschodniej i częściowo północnej, stawiając lity mur z cegły rozbiórkowej. Pod koniec lat osiemdziesiątych przełożono pokrycie dachu korpusu i wieży. W 1991 wymieniono dawną posadzkę ceglaną na lastrikową, pomalowano ściany we wnętrzu i wymieniono ławki. Rok później na emporze organowej i pod jej częścią południową postawiono prowizoryczne ścianki i wydzielono niewielkie pomieszczenia[1] na salkę katechetyczną oraz zakrystię[13].
W roku 1999 rozpoczął się kolejny remont, w trakcie którego została m.in. przełożona dachówka, otynkowane pola międzyryglowe wieży i rozebrany komin. W sierpniu 2002 podczas mszy, w której wzięli udział mieszkańcy wsi oraz miejscowi i przyjezdni Romowie uczestniczący w festiwalu Romane Dyvesa, został poświęcony nowy ołtarz[8].
Architektura
Kościół jest usytuowany w centrum wsi przy ul. Kasztanowej 3, na działce o numerze ewidencyjnym 080104_2.0008.123 i powierzchni 0,24 ha[14]. Znajduje się we wschodniej części wrzecionowatego nawsia, do dziś widocznego w rozplanowaniu Wojcieszyc. Prostokątna działka jest otoczona ceglanym płotem, z głównym wejściem od strony zachodniej[15]. Rośnie na niej pięć wysokich lip.
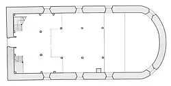
Założony jest na planie prostokąta zamkniętego od wschodu półkolistą apsydą o szerokości równej szerokości nawy. Jego wymiary zewnętrzne wynoszą 11,80 × 25,50 m. Wewnątrz szerokość 9,60 m, długość 23,50 m. Grubość ścian 1,15 m. Wysokość nawy głównej od posadzki do stropu wynosi 5,25 m, wysokość wieży 23 m (bez chorągiewki). Powierzchnia zabudowy 306,50 m², powierzchnia użytkowa 223,70 m², kubatura 2790 m³[16].
Korpus przykryty jest dwuspadowym dachem pokrytym dachówką karpiówką ułożoną podwójnie w koronkę, który nad apsydą przechodzi w dach stożkowy. Mury nawy posiadają 17 warstw kamieni narzutowych, przyciosanych do formatu kostki i są zwieńczone gzymsem. Staranne obrobienie kostek granitowych oraz ich równe ułożenie stanowi główny argument datowania obiektu na przełom XIII/XIV wieku i wiązania go z grupą najstarszych kościołów kamiennych Pomorza Zachodniego[15].
Podstawa szczytu zachodniego zbudowana jest z cegły gotyckiej w wiązaniu wendyjskim, część górna z cegły nowożytnej w wątku blokowym. Cegłą gotycką są obmurowane ościeża portalu i okien, gzyms wieńczący oraz łuki wejść go krypty. Na elewacjach korpusu zachowały się resztki tynków wapiennych.
Nad częścią zachodnią wznosi się nadwieszona, niewyodrębniona w rzucie przyziemia wieża o drewnianej konstrukcji szkieletowej. Korpus wieży został zbudowany na planie kwadratu o szerokości 5,00 m. W każdej z jego ścian znajdują się po dwa okna łukowe. Nad korpusem wznosi się ośmioboczny bęben, którego wszystkie ściany są odeskowane. Szkielet konstrukcyjny wieży jest złożony z czterech narożnych słupów i trzech dodatkowych w obrębie każdej ze ścian. Pomiędzy słupami znajdują się cztery poziomy rygli i zastrzały. Na szkielet latarni składa się osiem słupów, pomiędzy którymi znajdują się okienka z deszczółkowatymi żaluzjami. Kołnierz i hełm wieży są pokryte blachą ocynkowaną[16].
W elewacjach północnej i południowej znajdują się po trzy duże, łukowato zamknięte okna i po jednym takim samym w skrajnych patiach apsydy. Zostały one wykonane podczas przebudowy kościoła w latach 1703-1705. Pośrodku zewnętrznej ściany apsydy widać ślady po trzecim oknie, które zostało zamurowane podczas prac remontowych w latach 30 XX wieku. W tym czasie zamurowano również wejścia do krypty u wschodnich krańców południowej i północnej ściany korpusu. Ślady dostawienia apsydy do korpusu są widoczne w postaci szwów dylatacyjnych oraz innej techniki budowy. Prawdopodobnie przy północnej ścianie korpusu znajdował się niegdyś zakrystia, na co wskazuje obecność zamurowanego otworu drzwiowego pod środkowym oknem. Potwierdzenie tej hipotezy wymagałoby przeprowadzenia prac wykopaliskowych[15].
Portal w ścianie zachodniej, a jeszcze bardziej znajdujące się nad nim okno, są przesunięte w kierunku północnym w stosunku do osi symetrii fasady[17]. W wejściu głównym znajdują się drzwi dwuskrzydłowe, deskowo-klepkowe, wykonane w latach trzydziestych XX w. Stolarka okienna, na którą składają się drewniane ramiaki i szprosy dzielące okna na sześć kwater, została wymieniona na początku XXI wieku.
Na poddaszu widoczne są pozostałości po niezrealizowanym w latach trzydziestych XX w. zamiarze wymiany stropu belkowego na beczkowy. Są to zastrzały w formie półkolistych łęków przybite do jętek więźby dachowej oraz stalowe ściągi ze śrubami rzymskimi[1].
Wnętrze przykryte jest nagim stropem belkowanym, wspartym na trzech parach prostych drewnianych słupów, tworzących układ pseudonawowy[18]. Belki podparte są podciągami i dwoma rzędami słupów, które były zarazem elementami konstrukcyjnymi empor bocznych, rozebranych po II wojnie światowej. Od strony poddasza do belek pomalowanych brązową farbą olejną, są przybite szerokie deski pomalowane farbą olejną na biało. Na ścianach podłużnych pod belkami znajduje się drewniany, profilowany gzyms. Ściany są pomalowane na kolor biały[1].
Wyposażenie
Wyposażenie kościoła jest skromne. Sprzed 1945 pozostała tylko empora organowa, chrzcielnica, piec i dzwon. Z dawnego wyposażenia zaginął m.in. srebrny, pozłacany kielich mszalny o wysokości 17,5 cm z początku XV wieku, z małym krucyfiksem i reliefami na sześciokątnej stopie przedstawiającymi figury NMP, św. Jana, św. Wawrzyńca i św. Doroty[3].
Empora jest załamana prostokątnie przy ścianach bocznych. Znajduje się za nią przepierzenie kryjące schody prowadzące na wieżę. Posiada bardzo proste, płycinowe balustrady, pochodzące z początku XX wieku[18].
Neogotycka chrzcielnica wykonana z drewna dębowego pochodzi z końca XIX wieku. Posiada wysokość 93 cm, składa się z wielobocznej, profilowanej podstawy, ośmiobocznego trzonu i takiejże czaszy zakończonej rozszerzającym się ku górze kołnierzem pokrytym ornamentem roślinnym. Misy chrzcielnej brakuje.
Piec żeliwny z początku XX wieku znajduje się przy ścianie południowej, przy specjalnie zbudowanym przewodzie kominowym. Jest ustawiony na czterech lwich łapach. Drzwiczki paleniska i popielnika znajdują się w ścianie czołowej, zakończonej ażurowym fryzem przechodzącym na ściany boczne i zwieńczonym trójkątnym szczytem, zasłaniającym dwuspadowy daszek przykrywający piec. Krawędzie szczytu i kalenice daszku ozdabiają ażurowe sterczynki. Boki pieca są ozdobione ażurowymi reliefami roślinnymi ułożonymi w kwadry. Na wieży zawieszony jest żeliwny dzwon z 1931 roku[15].
W latach siedemdziesiątych XX w. został usunięty ołtarz ambonowy z początków XVIII wieku, który według Reismanna był podobny do ołtarza w nieodległych Różankach. Składał się z prostej mensy i prostokątnej nastawy ujętej dwoma kolumnami jońskimi. W centralnej części nastawy umieszczona była pięcioboczna ambona. Nastawę wieńczył wydatny profilowany gzyms. Przez dłuższy czas w kościele znajdował się ołtarz zbudowany przez mieszkańców, który w roku 2002 został zastąpiony przez nowy, przedstawiający scenę ukrzyżowania, wyposażony w krucyfiks oraz figury Matki Bożej i św. Jana wyrzeźbione przez Karola Parno Gierlińskiego. Kolejna praca tego artysty, przedstawiająca św. Judę, znajduje się przy ścianie południowej, a w kapliczce na zewnątrz kościoła niewielka, polichromowana figurka Madonny.
Po roku 2000 w ścianie apsydy po lewej stronie ołtarza (patrząc od strony nawy) wykuto sakramentarium – płytką niszę, w której zostało osadzone tabernakulum[8].
Przypisy
- 1 2 3 4 5 6 7 Kazimiera Kalita Skwirzyńska, Kościół fil. pw. Podwyższenia Krzyża. Program prac konserwatorskich, Szczecin, 1977
- ↑ Kurt Reismann, Die Kunstdenkmäler des Stadt und Landkreises Landsberg (Warthe), Berlin, 1937
- 1 2 Zbigniew Miler. Wojcieszyce gm. Kłodawa, niem. n. Wormsfelde. „Ziemia Gorzowska”. 13, 27.03.2003. ISSN 0208-6999.
- ↑ Barnkowo Kościół filialny. [dostęp 2015-06-25].
- ↑ Parafia rzymskokatolicka p.w. św. Antoniego Brwice. [dostęp 2015-06-25].
- ↑ Józef Nowacki, Dzieje Archidiecezji Poznańskiej: Archidiecezja Poznańska w granicach historycznych i jej ustrój, Tom 2, Ksiȩgarnia Św. Wojciecha, 1964
- 1 2 3 Stanisław Sinkowski. Druga młodość wojcieszyckiej świątyni. „Kłodawskie Wieści”. 2(1), czerwiec 1999. ISSN 1507-8884.
- 1 2 3 4 Zabytki. Witryna sołectwa Wojcieszyce, opracowano na podstawie: Karolina Paszkowska Dzieje wsi Wojcieszyce PWSZ w Gorzowie Wlkp. 2003, opublikowano 31 maja 2010. [dostęp 2018-06-03].
- ↑ Zbigniew Miler. Wojcieszyce gm. Kłodawa, niem. n. Wormsfelde. „Ziemia Gorzowska”. 14, 3.04.2003. ISSN 0208-6999.
- ↑ Annelise Bellmann, Wormsfelde – Die Dörfer unserer Heimat, Heimatblatt, 1988, nr 17
- ↑ Z dziejów Wojcieszyc. Witryna sołectwa Wojcieszyce, opracowano na podstawie: Karolina Paszkowska Dzieje wsi Wojcieszyce PWSZ w Gorzowie Wlkp. 2003, opublikowano 30 maja 2010. [dostęp 2015-07-23].
- ↑ Parafia Rzymsko-Katolicka pod wezwaniem św. Stanislawa Kostki w Różankach. [dostęp 2017-09-02]. [zarchiwizowane z tego adresu (2017-09-02)].
- ↑ Wedle relacji niektórych mieszkańców pomieszczenie na emporze powstało w latach siedemdziesiątych XX w.
- ↑ Gminny Portal Mapowy. [dostęp 2015-06-25].
- 1 2 3 4 Kazimiera Kalita Skwirzyńska, Katalog kościołów gminy Kłodawa woj. gorzowskie, Szczecin, 1992
- 1 2 Marcin Przybytek, Wojcieszyce, Kościół filialny pod wezwaniem Podwyższenia Krzyża Świętego, Opinia Techniczna, Szczecin, czerwiec 1997
- ↑ Wojcieszyce – lokalne sprawy w globalnej sieci / Średniowieczna(?) fuszerka. [dostęp 2015-06-25].
- 1 2 Karta ewidencyjna zabytku W posiadaniu Wojewódzkiego Urzędu Ochrony Zabytków w Zielonej Górze, delegatura w Gorzowie Wlkp., nr 20/76, 22.X.1976

_location_map.png)


